125 CYPRESS POINT Drive, Springfield, IL, 62704
The Real Estate Group, Inc.Basics
- Date added: Added 3 hours ago
- Category: Single Family Residence
- Type: Residential
- Status: Active
- Bedrooms: 4
- Bathrooms: 2
- Half baths: 1
- Area: 2240 sq ft
- Year built: 1973
- SubdivisionName: Country Club Estates
- ListOfficeName: The Real Estate Group, Inc.
- GarageSpaces: 2.5
- ListAOR: rmlsa
- MLS ID: RMACA1043264
Description
-
Description:
Tremendous Tri-Level!!! Top to bottom, this home has been three times refreshed! Colors and textures... Floors to ceilings... Light fixtures to faucets... Granite counters to back splashes... Black framed windows to grey shingles... A classic among the maples. With a fenced back yard for pets! The brand new flooring throughout really pulls it all together. A unique opportunity for a VA loan buyer - a transferable 2.xx% mortgage Prepare to be impressed by this fully renovated stunner in Country Club Estates, standing firm on a quiet, tree lined street, with sidewalks for strolling... The classy lines and finishes of this 4 bedroom, 2.5 bath home offers a perfect blend of sophisticated updates and Modernist charm. Step inside to discover gorgeous new flooring, newer doors and windows that flood the space with natural light. Bathrooms all updated with luxe finishes, fixtures and modern tile. Lower level has egress windows, a Family room/bonus room, Laundry in a nook, and a 4th Bedroom. Fenced backyard ready for outdoor fun or future expansion. Clean as can be with quality everywhere you look, this home is move in ready! Don’t miss this rare opportunity! Home has been pre-inspected and is being sold as reported. Schedule your showing today! Damaged window is ordered for replacement. We will consult with a contractor for a few notes in the inspection otherwise selling as reported! Water line to refrigerator is currently disconnected to correct a small leak.
Show all description
Rooms
-
Rooms:
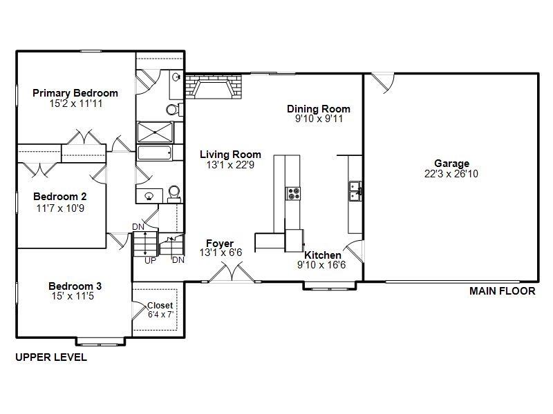
Room type Area Level Length Width Main Level 648 Upper Level 804 Lower Level 788 Basement Additional Level Bedroom 1 Upper 15.2 11.9 Bedroom 2 Upper 11.7 10.9 Bedroom 3 Upper 15 11.5 Bedroom 4 Lower 14.9 13.8 Living Room Main 22.9 13.1 Family Room Lower 15.1 14.8 Dining Room Main 9.9 9.9 Kitchen Main 16.5 9.9 Laundry Lower 5.2 3.5 Third Floor
Location
- CountyOrParish: Sangamon
- Directions: GPS friendly
Building Details
- NewConstructionYN: No
- Heating: Natural Gas, Forced Air
- Exterior material: Aluminum Siding, Brick, Frame
- Roof: Shingle
- Parking: Attached, Garage Door Opener
Video
- VirtualTourURLUnbranded: https://design-eyes-photography.aryeo.com/sites/evwvxgkz/unbranded
Amenities & Features
- Waterfront available: No
- GarageYN: Yes
- AttachedGarageYN: No
- FireplaceYN: No
- PoolPrivateYN: No
- Cooling: Central Air
- WindowFeatures: Window Treatments, Blinds
- ExteriorFeatures: Replacement Windows
- Amenities:
- Features:
