1577 WABASH Avenue, Springfield, IL, 62704
The Real Estate Group, Inc.Basics
- Date added: Added 4 months ago
- Category: Commercial
- Type: Commercial Sale
- Status: Active
- ListOfficeName: The Real Estate Group, Inc.
- ListAOR: rmlsa
- MLS ID: RMACA999276
Description
-
Description:
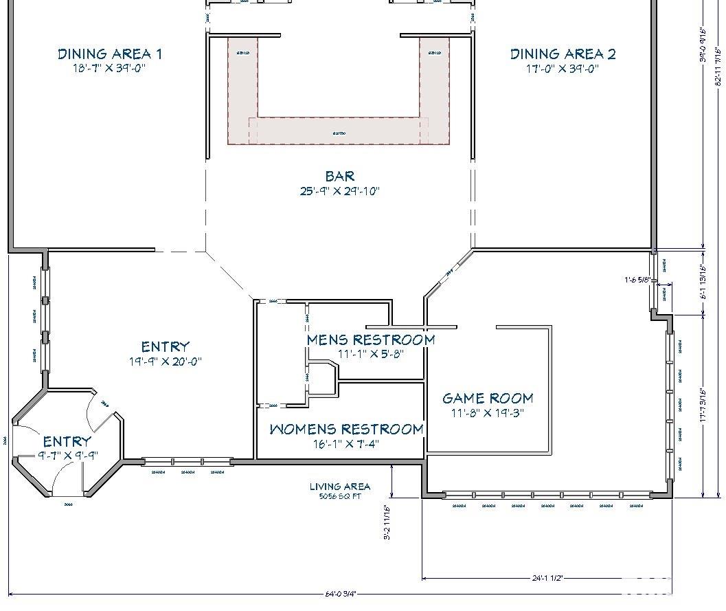
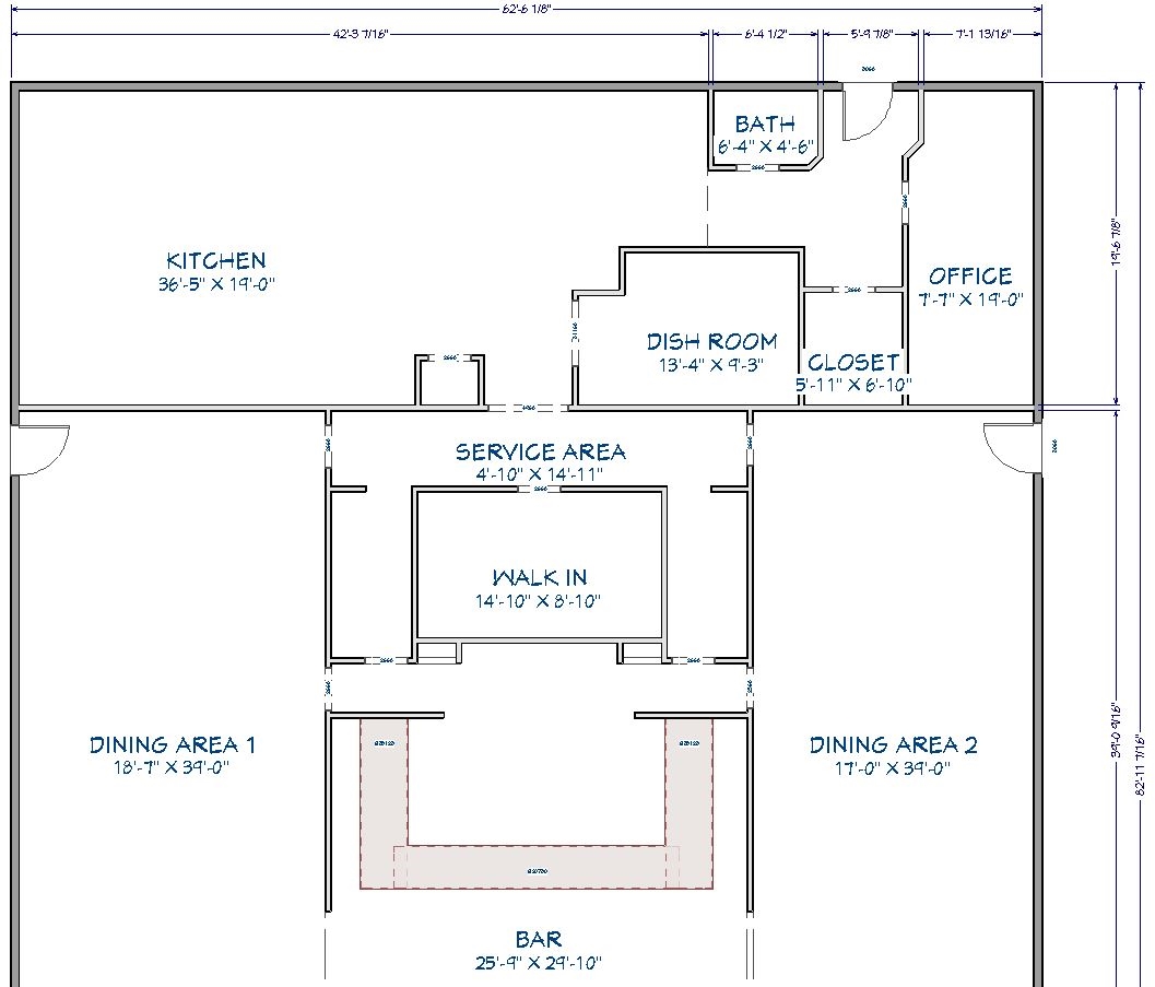
Commercial building available for retail or restaurant with large gaming room. Completely rebuilt in 2007. Building features two dining rooms, a large center bar, gaming room, manager's office, and a private upper level office suite with kitchenette and full bathroom. There are 3 parcels of land on approximately a 1/2 acre including the overflow parking lot across Leonard Street.
Show all description
Location
- CountyOrParish: Sangamon
- Directions: On corner of Wabash and Leonard in Jerome.
Building Details
- NewConstructionYN: No
- Heating: Forced Air
- Exterior material: Frame, Vinyl Siding
- Roof: Composition Shingle
Video
- VirtualTourURLUnbranded: https://www.virtualtourchoice.com/propertytour/theproperty4.php?id=1054
Amenities & Features
- Waterfront available: No
- GarageYN: No
- AttachedGarageYN: No
- FireplaceYN: No
- PoolPrivateYN: No
- Cooling: Central Air
