614-616 State Route 116 Highway, Germantown Hills, IL, 61548
RE/MAX Traders UnlimitedBasics
- Date added: Added 2 months ago
- Category: Commercial
- Type: Commercial Sale
- Status: Active
- Year built: 2015
- UnitNumber: 614 and 616
- ListOfficeName: RE/MAX Traders Unlimited
- ListAOR: rmlsa
- MLS ID: RMAPA1264266
Description
-
Description:
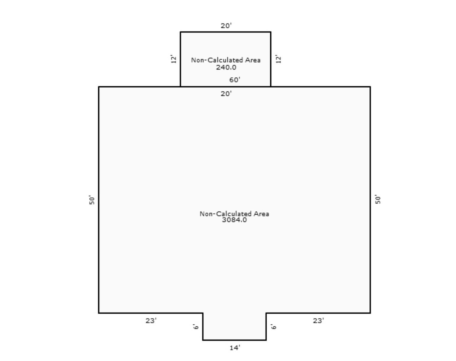
This fully leased office building investment property (2 commercial tenants) is conveniently located in between Germantown Hills and Metamora. A new counseling center is the 614 tenant. 616 has a long term tenant that just signed a new lease and occupies 75% of the building - 1500SF main floor and the lower unit with full kitchen, restroom and two garages. Rents are $61,200 and projected expenses are $14,235 (taxes, insurance, lawn/snow/garbage). The property includes a generous size parking lot, is all ADA compliant, and has business park association/co-ownership for access to the surrounding land, septic and water.
Show all description
Location
- CountyOrParish: Woodford
- Directions: Route 116 and Frontage Road
Building Details
- NewConstructionYN: No
- Heating: Forced Air, Natural Gas, Individual Unit
- Exterior material: Brick, Frame, Stone, Vinyl Siding
- Roof: Composition Shingle, Sloped
Amenities & Features
- Waterfront available: No
- GarageYN: No
- AttachedGarageYN: No
- FireplaceYN: No
- PoolPrivateYN: No
- Cooling: Central Air, Multi Units
